








Bedroom
4
Bath
2
Year Built
-
Size
2,596 sf

Property Type
Single-Family
Property Description
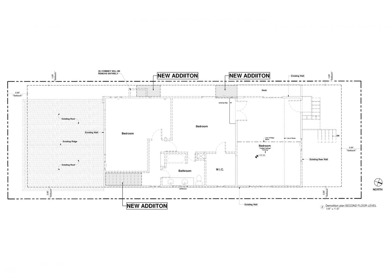
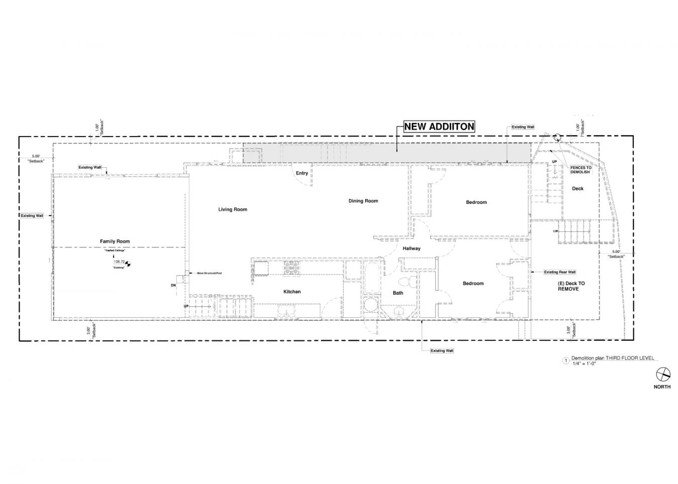
Your Future Starts Here – 3502 Vista Drive, Manhattan Beach What we're offering isn't just a home-it's a head start. Complete with architectural renderings and thoughtfully designed plans by renowned local architect Gary Lane, this is your opportunity to bring a stunning vision to life in the heart of Manhattan Beach's Sand Section. (see supplement for full plans) Welcome to 3502 Vista Drive, a rare corner-lot gem just blocks from the beach, where future potential meets a premier location. The included renderings showcase what could be, a reimagined coastal retreat designed to turn heads and capture hearts. The groundwork has been laid, the plans are in place. Now, it just needs you. Current specs include 4 bedrooms, 2.5 baths, and approx. 2,600 sq. ft. of flexible living space across two levels-with glimpses of the ocean, generous outdoor areas, and a layout that's ripe for transformation. Whether you're an investor eyeing your next big return or a future homeowner looking to create your dream beachside escape, this property delivers both promise and possibility. The unbeatable North Manhattan Beach location offers that walk-to-everything lifestyle-coffee runs, surf sessions, brunch with friends, and easy access to Silicon Beach, LAX, and the Westside. And let's not forget: properties with vision and location like this? They don't stay possibilities for long. This is your blueprint for something spectacular. Let's build it.
Property Details
Property ID
14779
Price
$2,875,000
Property Size
2,596 sf
Bathrooms
2
Year Built
-
Property Type
Single-Family
Property Status
FOR SALE
Bedrooms
4
Address
Address
Map Address
City
State
3502 Vista Dr. Manhattan Beach
3502 Vista Dr. Manhattan Beach
Manhattan Beach
CA
Get More Information
Discover Our Featured Listings
Haven is a leading real estate company that provides a wide range of services to clients.